Chartered Planning Consultants
07722 542425
2026
Planning Advice - Minor Residential Application - South Staffordshire
Planning Advice - Stafford Borough (contractural)
2025
Planning Advice - Minor Residential Application - Stafford Borough
Planning Advice - Land Promotion - Stoke-on-Trent
2024
Planning Appraisal - Stambridge, Rochford, Essex
Planning Advice - Minor Residential Application - Birmingham
s.106 Advice and Heads of Terms - Stafford
Hearing - Major Residential - South of Stafford (no win no fee)
Hearing Preparation and Evidence - Major Residential - South of Stafford (no win no fee)
Planning Advice/Objection - Residents Group - Public Housing Scheme - Stafford Borough
Planning Advice - Major Leisure and Arts Development - Stafford Borough
Planning Advice/SHELAA Submission - Stafford Borough / South Staffordshire
Planning / Development Options Advice - Stafford
2023
Planning Advice - PD Rights Prior Approval Process and Flood Risk - Stafford Borough
Planning Application - Major Residential - South of Stafford
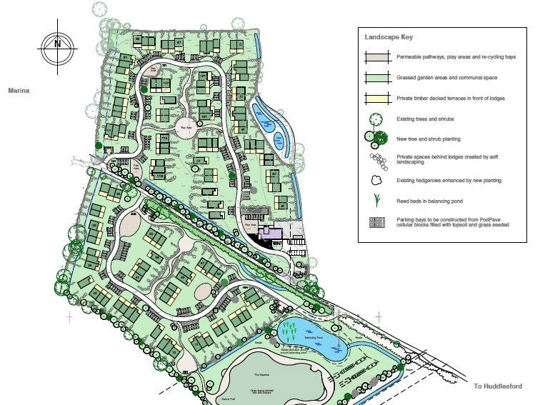
Discharge of Conditions on Approved Major Scheme - Holiday and Leisure Lodge Development, Huddlesford, Lichfield - Drainage and Flood Risk
Planning Application - Town Centre COU - Rugeley, Cannock
Outline Planning Application - Residential - Rugeley, Cannock
Planning Advice - Rural Development, Agricultural and PD Rights - Stafford Borough
Planning Application - Legalisation of Use (Retrospective) - Stone, Stafford Borough
2022
Pre Planning Advice - Landfill and Waste - Stafford Borough
Planning Advice/Objection - Prior Notification/Flood Risk/Noise Abatement - Stafford Borough
Pre-Planning Application Technical Work - Highways, Transport Assessment, Ecology and Project Management - Stafford Borough
Pre-Planning Application - Public Consultation - Specialist Housing - Stafford Borough
Development Plan Representation - Stafford Borough
Discharge of Conditions on Approved Major Scheme - Holiday and Leisure Lodge Development, Huddlesford, Lichfield - Project Management of 16 Contracts covering Drainage, Landscape Design, Arboriculture, Habitat Plans, Archaeology etc
Planning Advice - Rural Land Valuation and Development Options - Rugeley, Cannock
Planning Advice - PD Rights and Flood Risk Assessment - Stafford Borough
Planning Advice - Options Contract - Stafford Borough
Planning Advice - Sites for Planning Application - Newcastle-under-lyme and Stoke-on-Trent
Planning Advice/Objection - Residents Group - Major Development - Stafford Borough
Planning Advice - Rural Development, Agricultural and PD Rights - Stafford Borough
Planning Advice/Objection - Minor Residential - Stafford Borough
Planning Advice/Objection - Residents Group - Care Sector - Stafford Borough
Development Plan Advice - Major Urban Extension - Stafford Borough
Planning Application and Technical Work - Minor Residential - South Staffordshire
Planning Advice - Commercial Development - Staffordshire Moorlands
Land Promotion, Stafford and Stafford Rural (ongoing)
2021
Development Plan Representation - Minor Residential Sites - South Staffordshire
Planning Advice - Rural Development, Agricultural and PD Rights - Stafford Borough
Planning Advice - Rural Development, Agricultural and PD Rights - South Staffordshire (2)
Planning Advice/Objection - Minor Residential - Stafford Borough
Pre - Planning Application - Minor Residential - Acton Gate, Stafford - South Staffordshire
Pre - Planning Application - Residential - Dunston - South Staffordshire
Planning Advice - Rural Land Valuation and Development Options - Hilderstone/Meir
Land Valuation Policy and Viability Advice - Land Purchase - Stafford Borough
Planning Application - Retrospective and New Building Works - Amenity and Leisure Sector - South Staffordshire
Planning Application and technical work - Minor Residential - South Staffordshire
Land Valuation Policy and Viability Advice - Land Purchase - South Staffordshire
Planning Advice - Rural Land Purchase, Stafford Borough
Development Plan Advice - Major Urban Extension - Stafford Borough
Pre-Planning Application Technical Work - Highways, Transport Assessment, Ecology, Land Survey and Project Management - Stafford Borough
Highways Pre-App, Initial Master-planning and Design Drawings, Land Survey and Project Management - Stafford Borough
Land Promotion, South Staffordshire, Stafford and Stafford Rural (ongoing).
2020
Planning Advice on context of Planning and Provisions of the Coronavirus Act and Health Protection (Coronavirus) Regulations 2020 - Mortuary Extension
Planning Advice - Land Value, Highways Pre-App, Option Contract - Stafford Borough
Planning Application - Commercial SME - Stafford Borough
Planning Advice - Listed Building and Planning Consent - Multiple Application - Significant Listed Building in Conservation Area - Stafford Borough
Land Valuation Policy and Viability Advice - Land Purchase - Stafford Borough
Pre-application Planning Advice - Rural Land Purchase, SME and Housing Scheme - South Staffordshire
Planning Application - Retrospective and New Building Works - Amenity and Leisure Sector - South Staffordshire
Planning Advice - Rural Land Purchase, Stafford Borough
Planning Advice - Rural Affordable Housing, Stafford Borough
Planning Advice and Committee Representation - Land on Boundary of Wolverhampton - South Staffordshire
Planning Advice - Rural Housing, Stafford Borough
Planning Application - Outdoor Seating to A4 Drinking Establishment - Stafford Borough - context of Planning and Provisions of the Coronavirus Act and Health Protection (Coronavirus) Regulations 2020
Application - Variation to Condition - Hours or Opening - Stafford Borough
Policy Advice - Enforcement Travellers - context of Planning and Provisions of the Coronavirus Act and Health Protection (Coronavirus) Regulations 2020
Planning Advice on context of Planning and Provisions of the Coronavirus Act and Health Protection (Coronavirus) Regulations 2020 - Temporary Mortuary Provision
Development Plan Submission (Issues and Options) and Masterplanning - Major Urban Extension - Stafford Borough
Development Advice - Housing, Stafford Borough
Discharge of Conditions (DCON) - Commercial Access - Moddershall, Stafford
Planning Application - Commercial COU - Stafford
Development Advice - Rural Housing Scheme, Stafford Borough
Planning Application - Commercial, Garage, Repair Workshop and Car Wash, Stone Stafford
Planning Advice/Objection - Major Residential - Featherstone, South Staffs
Planning Advice/Objection - Minor Residential - Staffordshire Moorlands
Land Promotion, Stoke-on-Trent (ongoing)
Land Promotion, Stafford and Stafford Rural (ongoing)
2019
Public Hearing - Evidence in Chief - Major Holiday and Leisure Lodge Development, Huddlesford, Lichfield Express and Star Article Planning Resource Article
Development Advice - Housing, Stafford Borough
Planning Application, Equestrian, Stanton East Staffordshire
Statement of Case, Appeal Submission, Appeal - Cresswell, Staffordshire Moorlands
Planning Application - Significant Commercial - Moddershall, Stafford
Planning Application - Access - Stafford
Major Public Inquiry - Evidence in Chief - South Staffordshire (for LPA)
Statement of Case, Statement of Common Ground, Proof of Evidence for Inquiry - Major Residential - South Staffordshire (for LPA)
Planning Application - Legalising Change of Use - Stafford
Planning Application - Minor Residential - Stafford
Statement of Case, Appeal Submission, Unilateral Undertaking (s.106) - Major Holiday and Leisure Lodge Development, Huddlesford, Lichfield - working with Shoosmiths Solicitors, Birmingham
Planning Application - Commercial COU - Stafford
Planning Appeal - Small scale Residential, Coven South Staffordshire
Development Advice - Rural Housing Scheme, Stafford Borough
Planning Application - Commercial, Garage, Repair Workshop and Car Wash, Stone Stafford
Planning Application - Access - Stafford Rural
